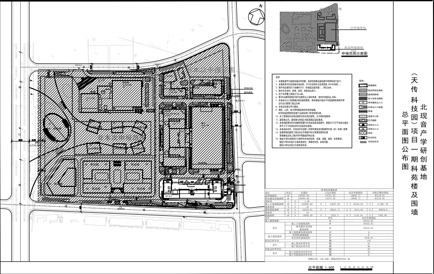
北现音产学研创基地(天传科技园)项目一期科苑楼及围墙建设工程规划方案总平面图已审批,审批时间为2025年12月9日,证书编号为2025西青建证0075。按照《中华人民共和国城乡规划法》、《天津市城乡规划条例》的要求,现将上述工程总平面图予以公布。
通讯地址:天津市西青区柳口路8号
联系电话:022-27395979
邮政编码:300380
k1体育(中国)官方网站 西青分局
2025年12月10日

北现音产学研创基地(天传科技园)项目一期科苑楼及围墙建设工程规划方案总平面图已审批,审批时间为2025年12月9日,证书编号为2025西青建证0075。按照《中华人民共和国城乡规划法》、《天津市城乡规划条例》的要求,现将上述工程总平面图予以公布。
通讯地址:天津市西青区柳口路8号
联系电话:022-27395979
邮政编码:300380
k1体育(中国)官方网站 西青分局
2025年12月10日

国务院相关部委
政府机关
局属单位网站
主办单位:k1体育(中国)官方网站 地址:天津市和平区曲阜道84号 邮编:300042
网站标识码:1200000077 备案编号:津ICP备19001981号
津公网安备12010102000518号
版权所有:k1体育(中国)官方网站