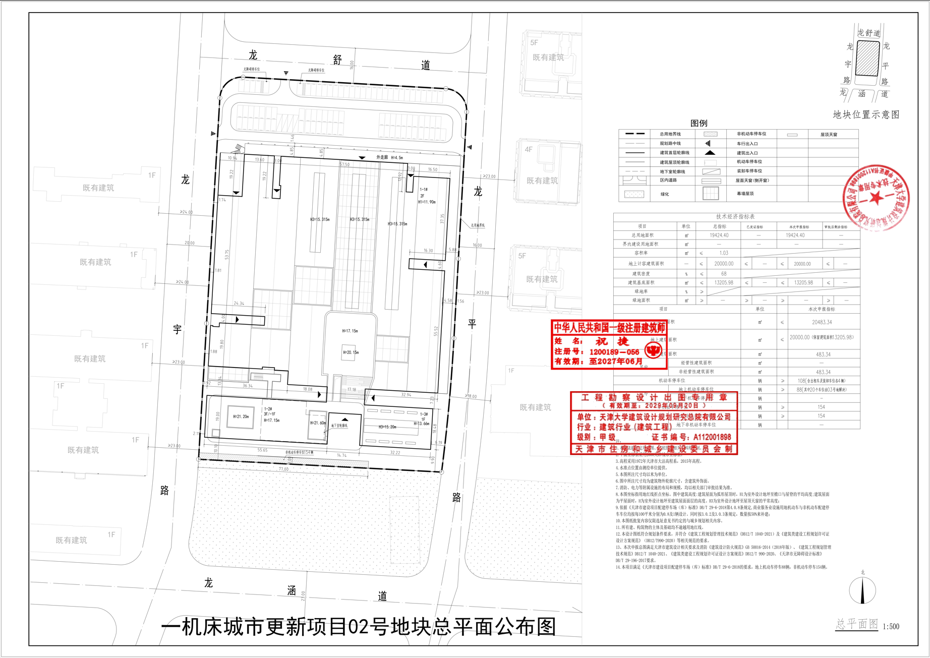
k1体育(中国)官方网站 河东分局于2025年12月4日核发了一机床城市更新项目02号地块项目建设工程规划许可证,依据《中华人民共和国城乡规划法》及住房和城乡建设部《关于城乡规划公开公示的规定》的有关要求,现将该项目建设工程设计方案公布,公布时间至项目规划验收合格。
联系电话:24020229
k1体育(中国)官方网站 河东分局
2025年12月12日

k1体育(中国)官方网站 河东分局于2025年12月4日核发了一机床城市更新项目02号地块项目建设工程规划许可证,依据《中华人民共和国城乡规划法》及住房和城乡建设部《关于城乡规划公开公示的规定》的有关要求,现将该项目建设工程设计方案公布,公布时间至项目规划验收合格。
联系电话:24020229
k1体育(中国)官方网站 河东分局
2025年12月12日

国务院相关部委
政府机关
局属单位网站
主办单位:k1体育(中国)官方网站 地址:天津市和平区曲阜道84号 邮编:300042
网站标识码:1200000077 备案编号:津ICP备19001981号
津公网安备12010102000518号
版权所有:k1体育(中国)官方网站