规划公布
(南开区)关于天津市第六十三中学新建高中教学楼工程建设工程设计方案总平面图的公布
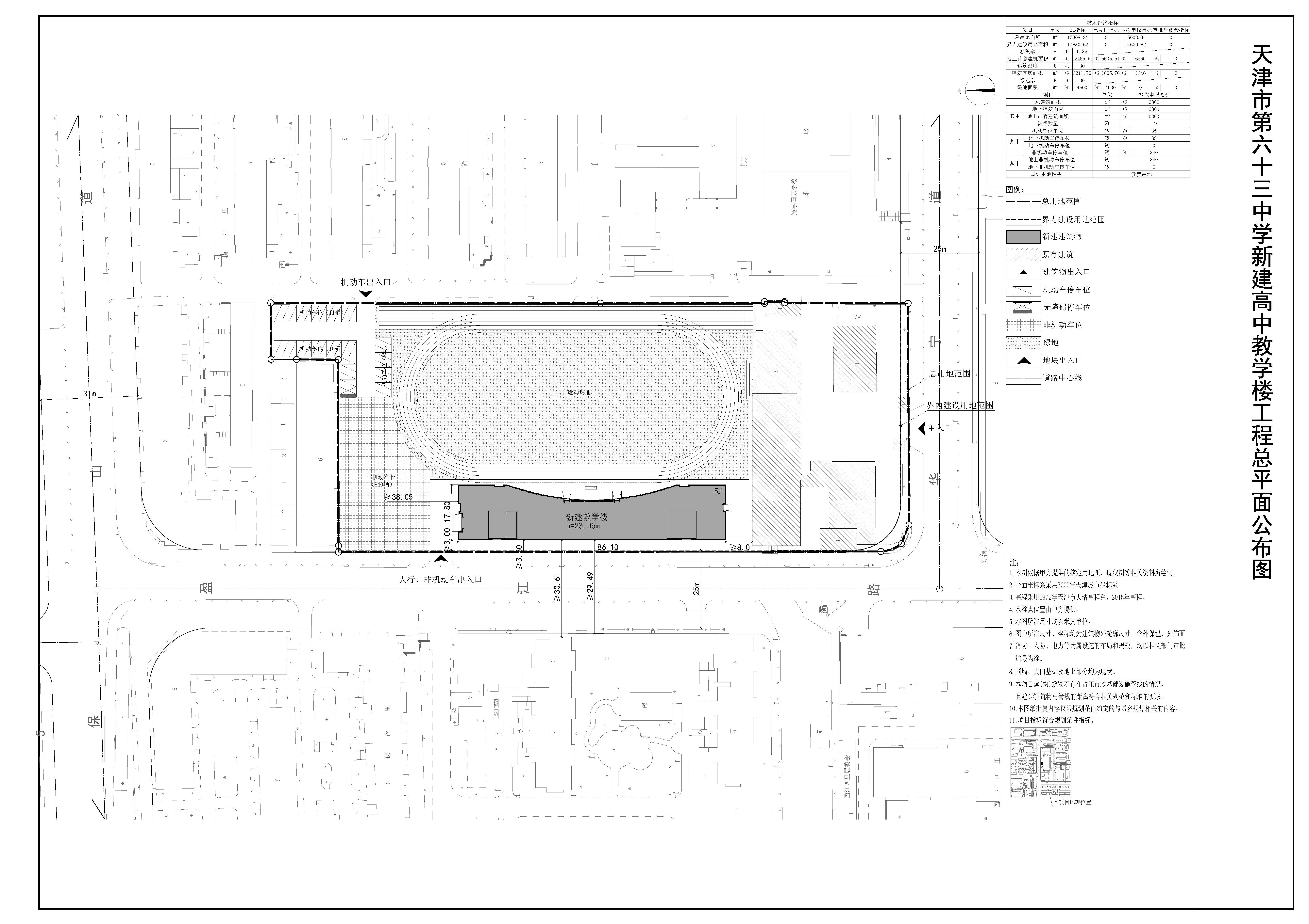
依据《中华人民共和国城乡规划法》相关要求,现将天津市第六十三中学新建高中教学楼工程建设工程设计方案总平面图予以公布,期限为发布之日至规划验收合格。

k1体育(中国)官方网站 南开分局
2026年03月03日
附件下载:
依据《中华人民共和国城乡规划法》相关要求,现将天津市第六十三中学新建高中教学楼工程建设工程设计方案总平面图予以公布,期限为发布之日至规划验收合格。

k1体育(中国)官方网站 南开分局
2026年03月03日
国务院相关部委
政府机关
局属单位网站
主办单位:k1体育(中国)官方网站 地址:天津市和平区曲阜道84号 邮编:300042
网站标识码:1200000077 备案编号:津ICP备19001981号
津公网安备12010102000518号
版权所有:k1体育(中国)官方网站